【マイホームを持つなら今!】高知市旭天神町建売③【新春限定価格キャンペーン開催中!】【完成しました!】☆南向き3LDK、駐車3台可能☆
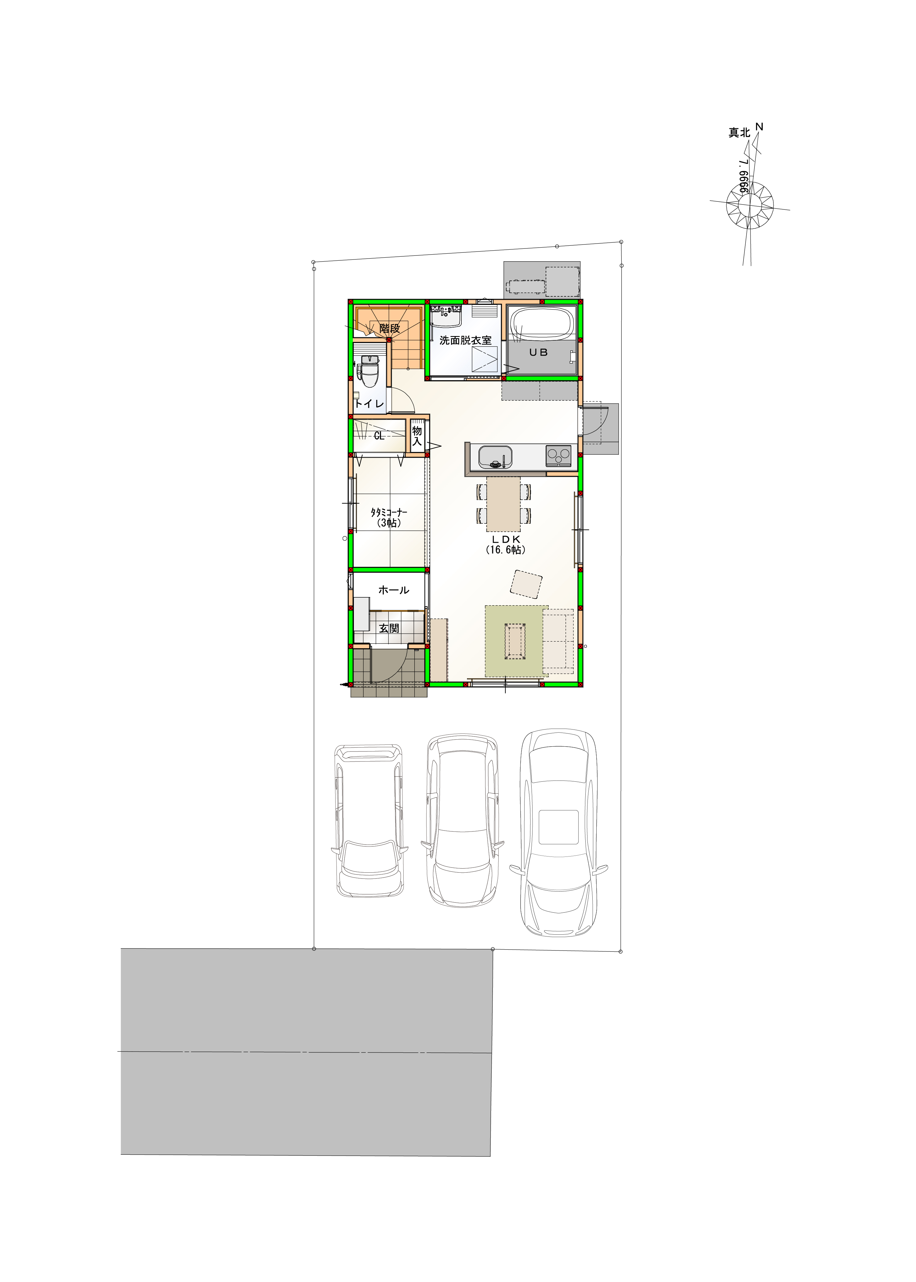
16.6帖の広々としたLDKは家族でゆったり過ごせます。LDKに隣接する3帖のタタミコーナーは、お子様の遊び場など多目的に使えます♪※CGにて家具を配置しています
(区画図)駐車3台可能なカースペース付き♪ ※画像はイメージです
8.5帖の主寝室は南側に面しており、大きな窓から明るい光が差し込みます。※CGにて家具を配置しています
前面道路
いえとち本舗の新築住宅は省エネ性能住宅で光熱費を年間約10.2万円まで抑えてくれます。
水回りがまとまっている家事ラク導線!多目的に使えるタタミコーナーも♪※画像はイメージです。
- 価格
- 2,998万円
- 所在地
- 高知市旭天神町字横枕 【高知市旭天神町建売③】
- 交通
-
土佐電鉄伊野線 蛍橋 (徒歩5分)
JR土讃線 旭 (徒歩8分)
- 通学区
-
旭東小学校 (400m)
城西中学校 (2,000m)
- 間取り
- 3LDK
- 建物面積
- 97.49㎡
完成時期
(築年月)
- 2025/12
- 階数
- 2階建
\ セールスポイント /
【来店&見学特典】Quoカード5,000円プレゼント実施中!
★太陽光発電6.160kw搭載済★駐車台数:3台
★間取り:3LDK(1F:LDK16.6帖、タタミコーナー3帖 2F:洋室5.1帖、洋室5.1帖、寝室8.5帖)
標準装備も充実♪
〈キッチン設備〉 対面式キッチン・IHコンロ・水なし両面焼きグリル・食器洗い乾燥機・カウンタートップ人造大理石・浄水器内蔵型水栓・キッチン手元コンセント
〈その他設備〉
1坪サイズシステムバス・断熱浴槽・浴室ポップアップ排水栓・UBエコアクアシャワー・UBマグネットシェルフ・3面鏡洗面化粧台・洗面エコハンドル水栓・浴室換気暖房乾燥機・温水洗浄便座トイレ・節水型トイレ・TVモニター付インターホン・インナーバルコニー・24H換気・外部コンセント・外部水栓・EV充電器
〈収納〉
全室居室収納・床下収納・WIC
安心・安全・快適に暮らせるお家♪
〈構造・仕様〉
耐震等級3相当・一次エネルギー消費等級6・断熱等性能等級5・ZEH仕様・オール電化仕様・Low-eガラス窓
〈保証制度〉
長期住宅保証・長期白蟻保証・アフターメンテナンス
周辺環境
☆ポッポ保育園まで徒歩4分(290m)
☆高知市立旭東小学校まで徒歩5分(400m)
☆高知市立城西中学校まで徒歩25分(2000m)
☆ファミリーマート高知旭天神町店まで徒歩4分(310m)
☆サニーマート山手店まで徒歩14分(1000m)
●住宅ローンや資金計画もお気軽に●
━━━━━━━━━━━━━━━━━━━━━━
借入れなど資金についてもお気軽にご相談ください。
返済シミュレーションももちろん無料!
お金についてもしっかりと考えましょう!
※毎週火曜・水曜日は定休日です。
●ご来店特典!●
━━━━━━━━━━━━━━━━━━━━━━
お店にご来店いただくと未完成物件でも
内装・仕様・カラーなど完成後を
イメージできる資料がございます!
お気軽にご相談にお越しくださいませ。
●資料請求も同時受付中♪●
━━━━━━━━━━━━━━━━━━━━━━
下部の「物件お問い合わせ」クリックで、
お気軽にお問い合わせください。
月々お支払い例
- 借り入れ金額
- 2,998万円
- 頭金
- 0円
- ボーナス払い
- 0円
毎月の返済額 72,314 円
※毎月返済額は元利均等方式の住宅ローン金利0.75%(3年固定)40年返済として算出しています。※当初3年間の返済金額です。 ※取扱金融機関は地方銀行の紹介ローンで算出しています。※融資限度額は地域・物件等の諸条件等により異なります。 ※保証料は融資額により異なります。※取扱手数料が別途かかります。※金融機関の審査により融資の可否は異なる場合がございます。
詳細情報
- 建物面積
- 97.49㎡
- 土地面積
- 121.05㎡
- 私道負担面積
- 46.00㎡
- 構造
- 1
- 階建
- 2階建
- 間取り
- 3LDK
完成時期
(築年月)
- 2025/12
- 水道
- 1 引込 1
- ガス
- 排水
- 2
- コンロ
- IH
- 駐車場
- 3台
- 都市計画
- 1
- 地目
-
1
- 用途地域
-
11
- 建ぺい率
- 60%
- 容積率
- 196%
- 土地権利
- 1
- 現況
- 5
- 引渡時期
- 2 2026年1月
- 接道状況
-
15側 2 幅員4.9m 接面4.2m
- 国土法
- 3
- 建築確認番号
- 第R07確認建築高知建技00377号
- 取引態様
- 株式会社グリーンエナジー・ライフ (1)
- 備考
- 【期間限定】今年最初のチャンス マイホームを持つなら今!
私道負担あり(184.03㎡のうち1/4持分)
建築確認番号:第R07確認建築高知建技00377号
太陽光発電システム6.160kW込みでの販売も可能です。太陽光発電込みでの価格は+100万円になります。
※お客様の屋根を当社にお貸しいただき太陽光発電システムを設置する「屋根貸しシステム」をご利用頂く事が価格の条件です。
※太陽光発電システムは発電開始して10年経過後に無償で譲渡します。
※太陽光発電付きでの購入も可能で、その場合は太陽光売電収入はお客様が得る事になります。
【新春限定価格キャンペーン注意事項】
■2026/2/28までのご契約で、2026/4/30までに物件引渡しのお客様
■対象の建売物件購入された方
■契約後、お客様の都合により解約に至った場合、権利は無効。
■本権利の他人に譲渡や金銭や他の物品との交換は不可
- 更新日
- 2026年01月12日
- 次回更新日
- 2026年01月26日
お近くの店舗で相談
-
来店予約
高知本店(本部直営店)
高知県高知市南御座3-6
0120-856-297


