【2月限定価格】丸亀市城東町建売④【春を待つ家】 新築 4LDK 【即入居可能!】【内覧可能!】☆ファミリーマート丸亀土居町店まで 徒歩7分☆
外観撮影写真 撮影日:2025年12月
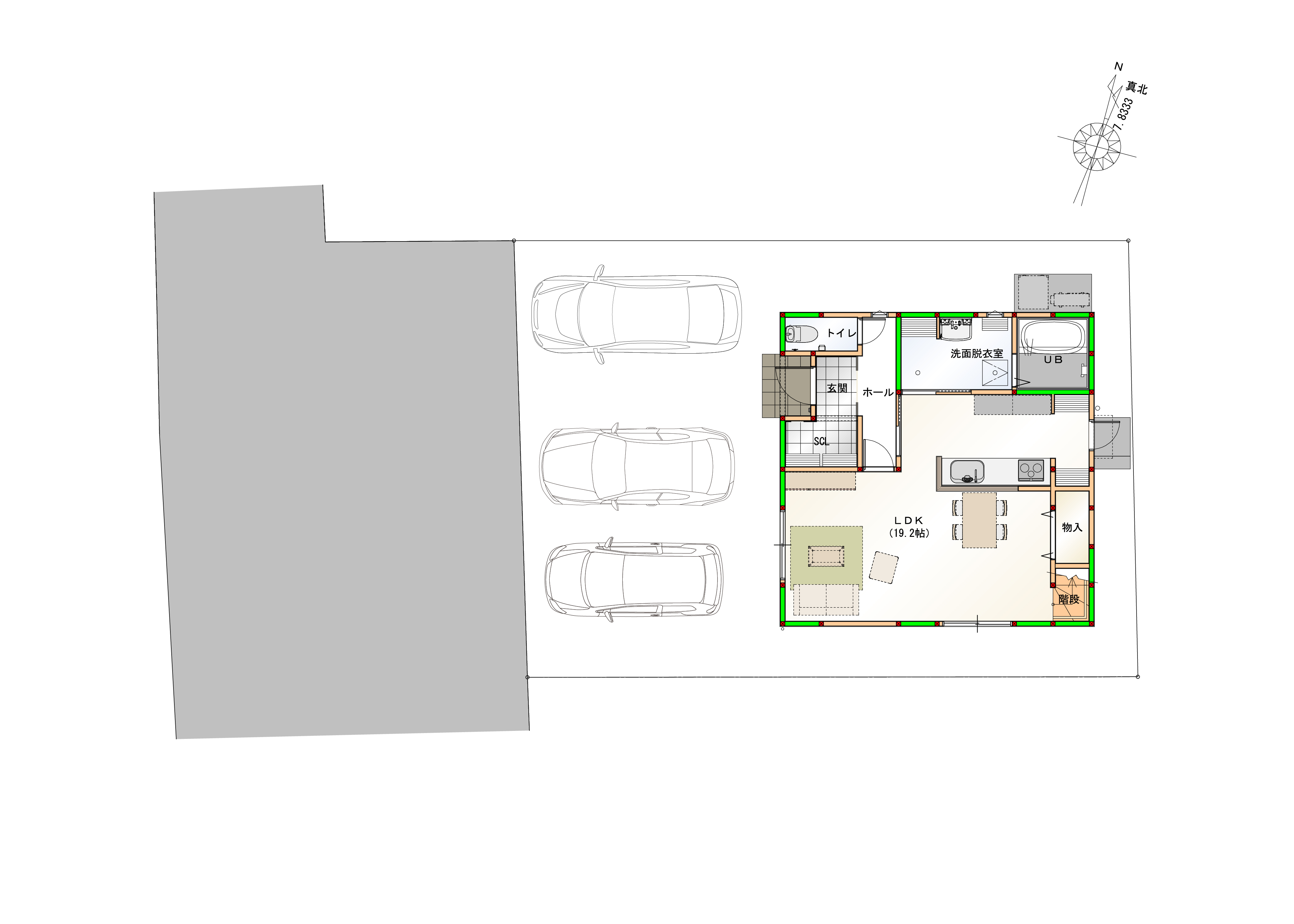
配置図
家族が集まるリビングは広々19.2帖!キッチンからもリビングが見渡せるため、どこに居ても家族を感じ、会話もはずみますね。
1日の疲れをほぐす、とっておきのリラクゼーションタイムを楽しむバスルーム。 美しく、機能的なデザインを採用、清潔感あふれる心地よい空間づくりにこだわりました。
三面鏡の裏は収納スペースとなっており、物が多くなりがちな洗面台まわりをスッキリ保つことができます。
洗濯機上のデッドスペースを収納に! シャンプーや洗剤のストック、掃除道具の収納にも!
主寝室は広々していて安らげる空間に。大きな窓から光が差し込み、朝の目覚めも良さそう♪
2階は4室確保!子ども部屋もしっかり取れます。 書斎にすることも出来、自分だけの空間を演出できます♪
2階は4室確保!子ども部屋もしっかり取れます。 書斎にすることも出来、自分だけの空間を演出できます♪
全居室収納付き!ハンガーパイプ付き棚で高さも160cmとお子様でも一人で掛けられる高さです♪
温水洗浄便座トイレ。新素材により、気になる便座もサッとひとふきでキレイになります。
2階にもトイレを設置!夜間に1Fへ降りることもないのでお子様でも安心できます♪
靴の収納はもちろん、ベビーカーやアウトドア用品など多目的収納スペースに利用できるシューズインクローク付き♪
いえとち本舗の新築住宅は省エネ性能住宅で光熱費を年間約12.1万円まで抑えてくれます
- 価格
- 2,198万円
- 所在地
- 丸亀市城東町一丁目
- 交通
-
JR予讃線 丸亀 (徒歩24分)
JR予讃線 宇多津 (徒歩38分)
バス停:琴参バス 労災病院 (徒歩7分)
- 通学区
-
城西小学校 (1,300m)
東中学校 (950m)
- 間取り
- 4LDK
- 建物面積
- 104.88㎡
完成時期
(築年月)
- 2025/12
- 階数
- 2階建
\ セールスポイント /
丸亀市城東町建売④☆駐車場台数3台☆太陽光6.60kW搭載!
【散歩が趣味になる。城景と共に目覚める贅沢な毎日。】
丸亀城までわずか徒歩5分! 日々の散策やウォーキングに最適な立地でありながら
2階寝室から丸亀市のシンボルを間近に捉えるこの眺望は、歴史と文化を感じさせてくれる大変希少なロケーションです。
歴史と静寂に包まれたこの場所で、心豊かな新生活を始めてみませんか?
★駐車台数 3台
★間取り:4LDK(1F:LDK19.2帖、2F:寝室8帖、洋室5.1帖、洋室5.1帖、洋室4.5帖)
標準装備も充実♪
〈キッチン設備〉
対面式キッチン・人造大理石カウンタートップ・IHコンロ・食器洗い乾燥機・オールインワン浄水栓・水なし両面焼きグリル・キッチン手元コンセント
〈その他設備〉
3面鏡洗面化粧台・1坪サイズシステムバス・温水洗浄便座トイレ・節水型トイレ・TVモニター付インターホン・24H換気・外部コンセント・外部水栓・浴室換気乾燥暖房機・2階トイレ・洗面エコハンドル水栓・UBエコアクアシャワー・UBマグネットシェルフ・断熱浴槽・ランドリー可動棚・勝手口・EV充電器
〈収納〉
全室居室収納・床下収納・シューズクローゼット
安心・安全・快適に暮らせるお家♪
〈構造・仕様〉
耐震等級3相当・オール電化仕様・ZEH仕様・断熱性能5等級以上・一次エネルギー消費量6等級以上・Low-eガラス窓
〈保証制度〉
長期住宅保証・長期白蟻保証・ソーラーパネル10年保証・ソーラーパネル25年出力保証・アフターメンテナンス・シックハウス対策
周辺環境
☆城西小学校 徒歩18分(1300m)
☆東中学校 徒歩13分(950m)
☆丸亀ひまわりこども園 徒歩8分(614m)
☆マルナカ土器店 徒歩18分(1400m)
☆ファミリーマート丸亀土居町店 徒歩7分(545m)
☆ディスカウントドラッグコスモス土器店 徒歩25分(1965m)
☆独立行政法人労働者健康福祉機構香川労災病院 徒歩3分(181m)
☆土器簡易郵便局 徒歩6分(459m)
━━━━━━━━━━━━━━━━━━━━━━
(事前に必ずお問い合わせください)
平日のご案内も大歓迎!
お気軽にお問い合わせ下さい☆
(1)【サクサク内覧コース】
(所要時間:30分程度)
プランのご説明、その他のご質問その場でお答えします。
(2)【じっくり内覧コース】
(所要時間:60分~90分程度)
サクサク内覧コースの内容+住宅ローンのご提案等のご相談何でも承ります。
資料をご提示の上しっかりご説明させて頂き見積もお作り致します。
発売前でインターネットに掲載していない情報などもお伝え致します。
●住宅ローンや資金計画もお気軽に●
━━━━━━━━━━━━━━━━━━━━━━
借入れなど資金についてもお気軽にご相談ください。
返済シミュレーションももちろん無料!
お金についてもしっかりと考えましょう!
※毎週火曜・水曜日は定休日です。
●ご来店特典!●
━━━━━━━━━━━━━━━━━━━━━━
お店にご来店いただくと未完成物件でも
内装・仕様・カラーなど完成後を
イメージできる資料がございます!
お気軽にご相談にお越しくださいませ。
●資料請求も同時受付中♪●
━━━━━━━━━━━━━━━━━━━━━━
下部の「物件お問い合わせ」クリックで、
お気軽にお問い合わせください。
月々お支払い例
- 借り入れ金額
- 2,198万円
- 頭金
- 0円
- ボーナス払い
- 0円
毎月の返済額 53,018 円
※毎月返済額は元利均等方式の住宅ローン金利0.75%(3年固定)40年返済として算出しています。※当初3年間の返済金額です。 ※取扱金融機関は地方銀行の紹介ローンで算出しています。※融資限度額は地域・物件等の諸条件等により異なります。 ※保証料は融資額により異なります。※取扱手数料が別途かかります。※金融機関の審査により融資の可否は異なる場合がございます。
詳細情報
- 建物面積
- 104.88㎡
- 土地面積
- 148.37㎡
- 私道負担面積
- -
- 構造
- 1
- 階建
- 2階建
- 間取り
- 4LDK
完成時期
(築年月)
- 2025/12
- 水道
- 1 引込 1
- ガス
- 排水
- 4 引込 1
- コンロ
- IH
- 駐車場
- 3台
- 都市計画
- 5
- 地目
-
1
- 用途地域
-
1
- 建ぺい率
- 50%
- 容積率
- 80%
- 土地権利
- 1
- 現況
- 6
- 引渡時期
- 2 2026年1月 3
- 接道状況
-
17側 2 幅員8.34m 接面10.295m
- 国土法
- 3
- 建築確認番号
- 第確07-0891号
- 取引態様
- 株式会社グリーンエナジー・ライフ (1)
- 備考
- 第確07-0891号
太陽光発電システム6.60kW込みでの販売も可能です。太陽光発電込みでの価格は+100万円になります。
※お客様の屋根を当社にお貸しいただき太陽光発電システムを設置する「屋根貸しシステム」をご利用頂く事が価格の条件です。
※太陽光発電システムは発電開始して10年経過後に無償で譲渡します。
※太陽光発電付きでの購入も可能で、その場合は太陽光売電収入はお客様が得る事になります。
【限定価格キャンペーン注意事項】
■2026/2/28までのご契約で、2026/4/30までに物件引渡しのお客様
■対象の建売物件購入された方
■契約後、お客様の都合により解約に至った場合、権利は無効。
■本権利の他人に譲渡や金銭や他の物品との交換は不可
- 更新日
- 2026年02月16日
- 次回更新日
- 2026年03月02日
お近くの店舗で相談
-
来店予約
高松本店(本部直営店)
香川県高松市林町1532-3 サンライズ第一ビル103
0120-180-290


