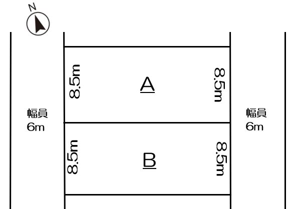
小松市村松町 売地
お気に入り

月々お支払い例
11,602円



この物件にお問い合わせ



