【頭金・ボーナス払い0円】藍住町住吉建売④ LDK30帖広々空間!【建築中物件限定!リビングエアコン特典付き】
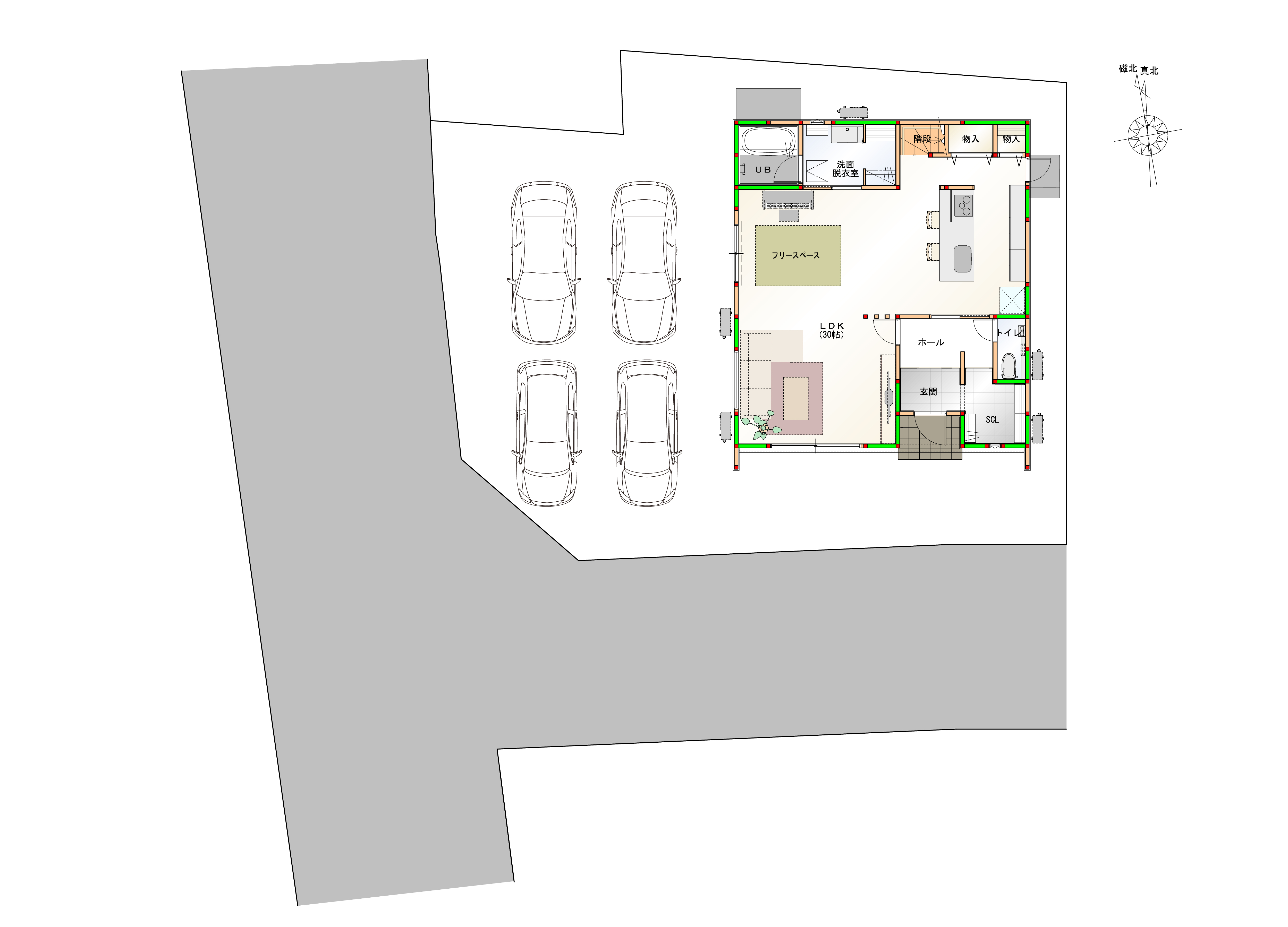
4台分は十分駐車できるカースペース。間取は4LDKと、プライベートスペースをしっかり確保しつつ、楽しい家族団らんもできる広々30帖のLDKがある住まいです♪ ※施工事例です。実物とは異なります。詳しくはお問い合わせください。
駐車4台可能! 画像はイメージです。
30畳のオープンLDKはシンプルコーディネート。温かみのあるワックスフリーフローリングはメンテナンス不要。※施工事例です。実物とは異なります。詳しくはお問い合わせください。
ペニンシュラキッチンをアイランド風に配置しており移動がスムーズ。家族とつながれる対面式なのも嬉しい。※施工事例です。実物とは異なります。詳しくはお問い合わせください。
キッチンの奥は、洗面脱衣室・浴室へと繋がっています。キッチンからは部屋全体を見渡せます。どこにいても家族を感じることができ、会話もはずみそう。※施工事例です。実物とは異なります。詳しくはお問い合わせください。
キッチンからはダイニングキッチンが見渡せます。キッチンからもリビングが見渡せるため、どこに居ても家族を感じ、会話もはずみますね。 ※施工事例です。実物とは異なります。詳しくはお問い合わせください。
1日の疲れをほぐす、とっておきのリラクゼーションタイムを楽しむバスルーム。 美しく、機能的なデザインを採用、清潔感あふれる心地よい空間づくりにこだわりました。 ※施工事例です。実物とは異なります。詳しくはお問い合わせください。
収納スペースがあり、物が多くなりがちな洗面台まわりをスッキリ保つことができます。※施工事例です。実物とは異なります。詳しくはお問い合わせください。
天井とクロスの色合わせで、上質感と広がりを演出している。※施工事例です。実物とは異なります。詳しくはお問い合わせください。
2階には洋室が3部屋あり、それぞれにクローゼットを完備。長く使っても飽きのこないシンプルデザインが魅力。※施工事例です。実物とは異なります。詳しくはお問い合わせください。
2階は3室確保!子ども部屋もしっかり取れます。自分だけの空間が嬉しい♪※施工事例です。実物とは異なります。詳しくはお問い合わせください。
屋根付きバルコニーで急な雨で洗濯物が濡れる心配も少ない設計♪ 天井吊りパイプで足回りもすっきり♪※施工事例です。実物とは異なります。詳しくはお問い合わせください。
全居室収納付き!たっぷり収納できます♪大切なお洋服もスッキリ収納できます。※施工事例です。実物とは異なります。詳しくはお問い合わせください。
温水洗浄便座トイレ。新素材により、気になる便座もサッとひとふきでキレイになります。※施工事例です。実物とは異なります。詳しくはお問い合わせください。
2階にもトイレを設置!夜間に1Fへ降りることもないのでお子様でも安心できます♪ ※施工事例です。実物とは異なります。詳しくはお問い合わせください。
大容量の土間収納を設置。靴はもちろん、べビーカーや 趣味の道具を置いておくのにも便利です♪※施工事例です。実物とは異なります。詳しくはお問い合わせください。
前面道路
【建築中物件フェア】本当に欲しい新築ほど早めに売れています。建築中から物件を見に行きませんか?
家事ラク導線で水回りを一まとめ♪丁度いいコンパクトハウスで日々の生活を楽に快適にサポートします♪ ※画像はイメージです。
- 価格
- 3,798万円
- 所在地
- 板野郡藍住町住吉字若宮
- 交通
-
JR高徳線 勝瑞 (徒歩27分)
- 通学区
-
藍住北小学校 (916m)
藍住東中学校 (289m)
- 間取り
- 4LDK
- 建物面積
- 147.39㎡
完成時期
(築年月)
- 2026/4
- 階数
- 2階建
\ セールスポイント /
★駐車台数4台 【藍住町住吉建売④】 太陽光12.320Kw搭載!ZEH住宅!
★間取り:4LDK(1F:LDK30帖 洋室6.5帖、洋室6帖、洋室6.5帖、寝室9.7帖)
標準装備も充実♪
〈キッチン設備〉
対面式キッチン・IHコンロ・水なし両面焼きグリル・食器洗い乾燥機・浄水器内蔵型水栓・カウンタートップ人造大理石・食器棚
〈その他設備〉
3面鏡洗面化粧台・シャワー付洗面化粧台・浴室ポップアップ排水栓・1坪サイズシステムバス・浴室換気暖房乾燥機・温水洗浄便座・複層ガラス・TVモニタ付インターホン・インナーバルコニー・24H換気・外部コンセント・外部水栓・2階トイレ・洗面エコハンドル水栓・UBエコアクアシャワー・UBマグネットシェルフ・断熱浴槽・EV充電器・勝手口
〈収納〉
全室居室収納・ウォークインクローゼット・床下収納・シューズクローク・ランドリー稼働棚
安心・安全・快適に暮らせるお家♪
〈構造・仕様〉
オール電化・耐震等級3相当・ZEH仕様・Low-eガラス窓・断熱性能5等級以上・一次エネルギー消費量6等級以上・フラット35S金利Aプラン対応(申請費用別途)
〈保証制度〉
長期住宅保証・長期白蟻保証・アフターメンテナンス・シックハウス対策
周辺環境
☆藍住北小学校まで徒歩12分(916m)
☆藍住東中学校まで徒歩4分(289m)
☆キョーエイ笠木店まで徒歩15分(1138m)
☆セブンイレブン藍住町勝瑞店まで徒歩12分(957m)
☆藍住郵便局まで車で6分(2091m)
━━━━━━━━━━━━━━━━━━━━━━
(事前に必ずお問い合わせください)
平日のご案内も大歓迎!
お気軽にお問い合わせ下さい☆
(1)【サクサク内覧コース】
(所要時間:30分程度)
プランのご説明、その他のご質問その場でお答えします。
(2)【じっくり内覧コース】
(所要時間:60分~90分程度)
サクサク内覧コースの内容+住宅ローンのご提案等のご相談何でも承ります。
資料をご提示の上しっかりご説明させて頂き見積もお作り致します。
発売前でインターネットに掲載していない情報などもお伝え致します。
●住宅ローンや資金計画もお気軽に●
━━━━━━━━━━━━━━━━━━━━━━
借入れなど資金についてもお気軽にご相談ください。
返済シミュレーションももちろん無料!
お金についてもしっかりと考えましょう!
※毎週火曜・水曜日は定休日です。
●ご来店特典!●
━━━━━━━━━━━━━━━━━━━━━━
お店にご来店いただくと未完成物件でも
内装・仕様・カラーなど完成後を
イメージできる資料がございます!
お気軽にご相談にお越しくださいませ。
●資料請求も同時受付中♪●
━━━━━━━━━━━━━━━━━━━━━━
下部の「物件お問い合わせ」クリックで、
お気軽にお問い合わせください。
月々お支払い例
- 借り入れ金額
- 3,798万円
- 頭金
- 0円
- ボーナス払い
- 0円
毎月の返済額 91,611 円
※毎月返済額は元利均等方式の住宅ローン金利0.75%(3年固定)40年返済として算出しています。※当初3年間の返済金額です。 ※取扱金融機関は地方銀行の紹介ローンで算出しています。※融資限度額は地域・物件等の諸条件等により異なります。 ※保証料は融資額により異なります。※取扱手数料が別途かかります。※金融機関の審査により融資の可否は異なる場合がございます。
詳細情報
- 建物面積
- 147.39㎡
- 土地面積
- 224.18㎡
- 私道負担面積
- -
- 構造
- 1
- 階建
- 2階建
- 間取り
- 4LDK
完成時期
(築年月)
- 2026/4
- 水道
- 1 引込 1 前面道路本菅50mm
- ガス
- 排水
- 2
- コンロ
- 駐車場
- 4台
- 都市計画
- 5
- 地目
-
1
- 用途地域
-
99
- 建ぺい率
- 60%
- 容積率
- 200%
- 土地権利
- 1
- 現況
- 4
- 引渡時期
- 3 2026年4月 2
- 接道状況
-
57側 1 幅員6.7m 接面9.536m5側 1 幅員5.2m 接面18.077m
- 国土法
- 建築確認番号
- 第792号 令和7年11月27日
- 取引態様
- 株式会社グリーンエナジー・ライフ (1)
- 備考
- 建築確認番号:第792号 令和7年11月27日
【建築中物件フェア注意事項】
■2026/4/30までのご契約のお客様
■対象の建築中建売物件を購入された方
■契約後、お客様の都合により解約に至った場合、権利は無効。
■本権利の他人に譲渡や金銭や他の物品との交換は不可
■その他のキャンペーンと併用不可
太陽光発電システム12.320kW込みでの販売も可能、その際の価格は+100万円になります。
※お客様の屋根を当社にお貸しいただき太陽光発電システムを設置する「屋根貸しシステム」をご利用頂く事が価格の条件です。
※太陽光発電システムは発電開始して10年経過後に無償で譲渡します。
※太陽光発電付きでの購入も可能で、その場合は太陽光売電収入はお客様が得る事になります。
- 更新日
- 2025年12月01日
- 次回更新日
- 2025年12月15日


