【決算価格】阿南市羽ノ浦町建売25【納得の好条件、まだ選べます】
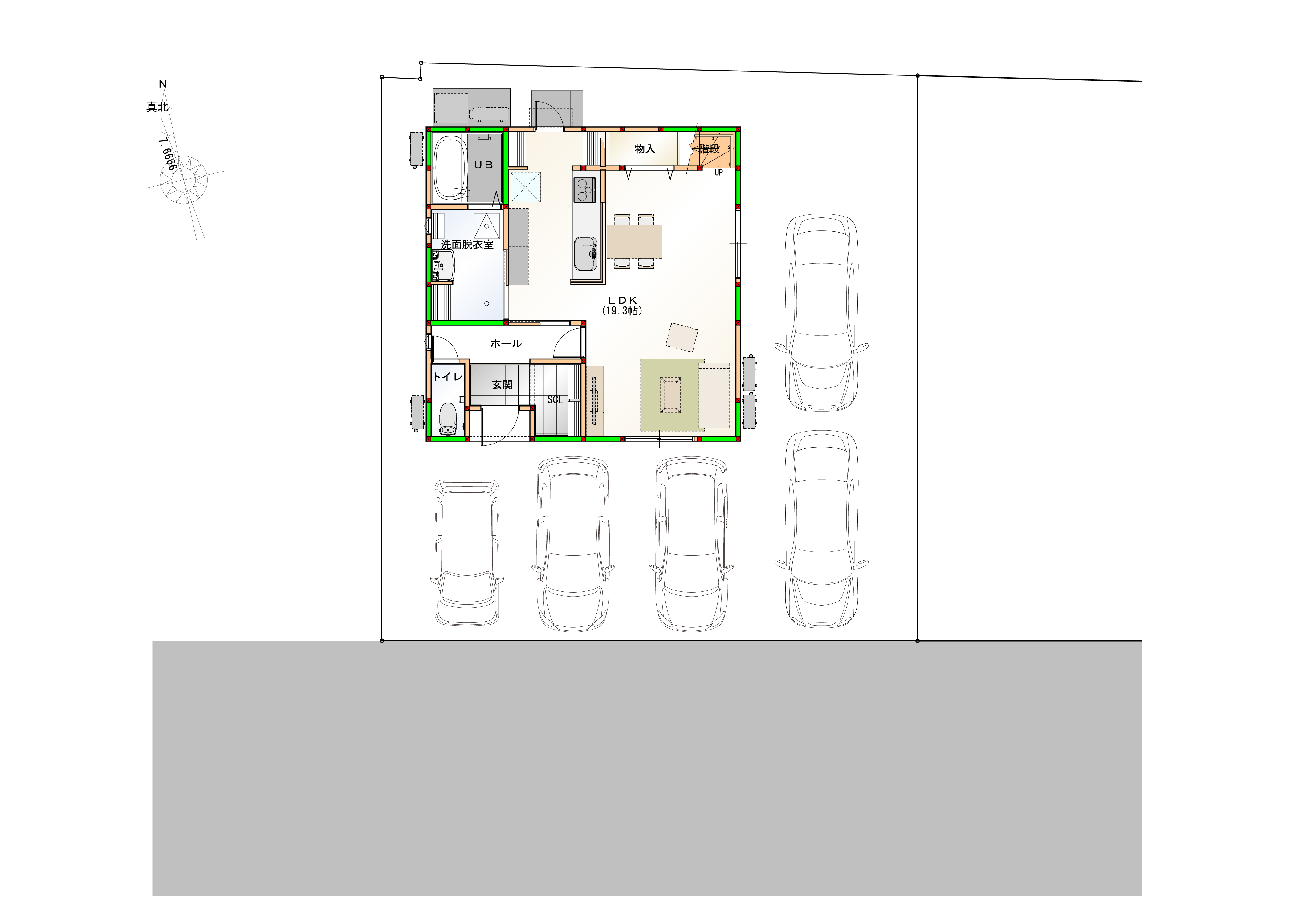
5台駐車できるゆとりのカースペース。間取りは3LDKと、プライベートスペースをしっかり確保しつつ、楽しい家族団らんもできる住まいです♪ 「※CGにて空を変更しています」 撮影月:2026年1月
駐車5台可能! 画像はイメージです。
家族が集まるリビングは広々19.3帖!キッチンからもリビングが見渡せるため、どこに居ても家族を感じ、会話もはずみますね。 「※CGにて家具を配置しています」
家族が集まる明るいリビング!お子様のお勉強をダイニングで済ませるようにすると家事をしながらお子様の頑張りを見守れます♪
対面式キッチンは家事をしながら家族を見守り、コミュニケーションの取れる人気のスタイル。食洗器付きで洗い物の時間を削減でき、家事の負担を軽減してくれるキッチンです。
キッチンからはダイニングキッチンが見渡せます。キッチンからもリビングが見渡せるため、どこに居ても家族を感じ、会話もはずみますね。 ※施工事例です。実物とは異なります。詳しくはお問い合わせください。
1日の疲れをほぐす、とっておきのリラクゼーションタイムを楽しむバスルーム。 美しく、機能的なデザインを採用、清潔感あふれる心地よい空間づくりにこだわりました。 ※施工事例です。実物とは異なります。詳しくはお問い合わせください。
三面鏡の裏は収納スペースとなっており、物が多くなりがちな洗面台まわりをスッキリ保つことができます。
洗濯機上のデッドスペースを収納に! シャンプーや洗剤のストック、掃除道具の収納にも!
主寝室は広々していて安らげる空間に。大きな窓から光が差し込み、朝の目覚めも良さそう♪ 「※CGにて家具を配置しています」
2階は3室確保!子ども部屋もしっかり取れます。自分だけの空間が嬉しい♪
2階は3室確保!子ども部屋もしっかり取れます。自分だけの空間が嬉しい♪
全居室収納付き!たっぷり収納できます♪大切なお洋服もスッキリ収納できます。
温水洗浄便座トイレ。新素材により、気になる便座もサッとひとふきでキレイになります。
2階にもトイレを設置!夜間に1Fへ降りることもないのでお子様でも安心できます♪
大容量の土間収納を設置。靴はもちろん、べビーカーや 趣味の道具を置いておくのにも便利です♪「※CGにて修正しています」
前面道路
家事ラク導線で水回りを一まとめ♪丁度いいコンパクトハウスで日々の生活を楽に快適にサポートします♪ ※画像はイメージです。
- 価格
- 2,698万円
- 所在地
- 阿南市羽ノ浦町中庄字池ノ上
- 交通
-
JR牟岐線 羽ノ浦 (徒歩18分)
- 通学区
-
羽ノ浦小学校 (1,170m)
羽ノ浦中学校 (2,483m)
- 間取り
- 3LDK
- 建物面積
- 104.88㎡
完成時期
(築年月)
- 2026/2
- 階数
- 2階建
\ セールスポイント /
★駐車台数5台 【阿南市羽ノ浦町建売25】 太陽光6.600kW搭載!ZEH住宅!
★間取り:3LDK(1F:LDK19.3帖 洋室6帖 2F:洋室6帖、洋室6.7帖、寝室10帖)
標準装備も充実♪
〈キッチン設備〉
対面式キッチン・IHコンロ・水なし両面焼きグリル・食器洗い乾燥機・キッチン手元コンセント・浄水器内蔵型水栓・カウンタートップ人造大理石
〈その他設備〉
3面鏡洗面化粧台・シャワー付洗面化粧台・浴室ポップアップ排水栓・1坪サイズシステムバス・浴室換気暖房乾燥機・温水洗浄便座・複層ガラス・TVモニタ付インターホン・インナーバルコニー・24H換気・外部コンセント・外部水栓・2階トイレ・洗面エコハンドル水栓・UBエコアクアシャワー・UBマグネットシェルフ・断熱浴槽・EV充電器・勝手口
〈収納〉
全室居室収納・ウォークインクローゼット・床下収納・シューズボックス・ランドリー稼働棚
安心・安全・快適に暮らせるお家♪
〈構造・仕様〉
オール電化・耐震等級3相当・ZEH仕様・Low-eガラス窓・断熱性能5等級以上・一次エネルギー消費量6等級以上・フラット35S金利Aプラン対応(申請費用別途)
〈保証制度〉
長期住宅保証・長期白蟻保証・アフターメンテナンス・シックハウス対策
周辺環境
☆羽ノ浦小学校まで徒歩15分(1170m)
☆羽ノ浦中学校まで徒歩31分(2483m)
☆ローソン羽ノ浦中庄黒松店まで徒歩9分(681m)
☆デイリーマート羽ノ浦店まで車で5分(1768m)
☆中庄郵便局まで車で5分(1314m)
━━━━━━━━━━━━━━━━━━━━━━
(事前に必ずお問い合わせください)
平日のご案内も大歓迎!
お気軽にお問い合わせ下さい☆
(1)【サクサク内覧コース】
(所要時間:30分程度)
●住宅ローンや資金計画もお気軽に●
━━━━━━━━━━━━━━━━━━━━━━
借入れなど資金についてもお気軽にご相談ください。
返済シミュレーションももちろん無料!
お金についてもしっかりと考えましょう!
※毎週火曜・水曜日は定休日です。
●ご来店特典!●
━━━━━━━━━━━━━━━━━━━━━━
お店にご来店いただくと未完成物件でも
内装・仕様・カラーなど完成後を
イメージできる資料がございます!
お気軽にご相談にお越しくださいませ。
●資料請求も同時受付中♪●
━━━━━━━━━━━━━━━━━━━━━━
下部の「物件お問い合わせ」クリックで、
お気軽にお問い合わせください。
月々お支払い例
- 借り入れ金額
- 2,698万円
- 頭金
- 0円
- ボーナス払い
- 0円
毎月の返済額 65,078 円
※毎月返済額は元利均等方式の住宅ローン金利0.75%(3年固定)40年返済として算出しています。※当初3年間の返済金額です。 ※取扱金融機関は地方銀行の紹介ローンで算出しています。※融資限度額は地域・物件等の諸条件等により異なります。 ※保証料は融資額により異なります。※取扱手数料が別途かかります。※金融機関の審査により融資の可否は異なる場合がございます。
詳細情報
- 建物面積
- 104.88㎡
- 土地面積
- 169.11㎡
- 私道負担面積
- -
- 構造
- 1
- 階建
- 2階建
- 間取り
- 3LDK
完成時期
(築年月)
- 2026/2
- 水道
- 1 引込 1 前面道路本菅75mm
- ガス
- 排水
- 2
- コンロ
- 駐車場
- 5台
- 都市計画
- 2
- 地目
-
1
- 用途地域
-
99
- 建ぺい率
- 70%
- 容積率
- 200%
- 土地権利
- 1
- 現況
- 5
- 引渡時期
- 3 2026年2月 2
- 接道状況
-
15側 幅員6m 接面12.593m
- 国土法
- 建築確認番号
- 第475号 令和7年8月28日
- 取引態様
- 株式会社グリーンエナジー・ライフ (1)
- 備考
- 建築確認番号:第475号 令和7年8月28日
【決算価格キャンペーン注意事項】
■2026/4/30までのご契約のお客様
■対象の建売物件購入された方
■契約後、お客様の都合により解約に至った場合、権利は無効。
■本権利の他人に譲渡や金銭や他の物品との交換は不可
太陽光発電システム6.600kW込みでの販売も可能、その際の価格は+100万円になります。
※お客様の屋根を当社にお貸しいただき太陽光発電システムを設置する「屋根貸しシステム」をご利用頂く事が価格の条件です。
※太陽光発電システムは発電開始して10年経過後に無償で譲渡します。
※太陽光発電付きでの購入も可能で、その場合は太陽光売電収入はお客様が得る事になります。
- 更新日
- 2026年03月06日
- 次回更新日
- 2026年03月20日


