11/2価格改定!【頭金・ボーナス払い0円】徳島市丈六町建売① 【完成済み!実際の住まいを今すぐ体感】
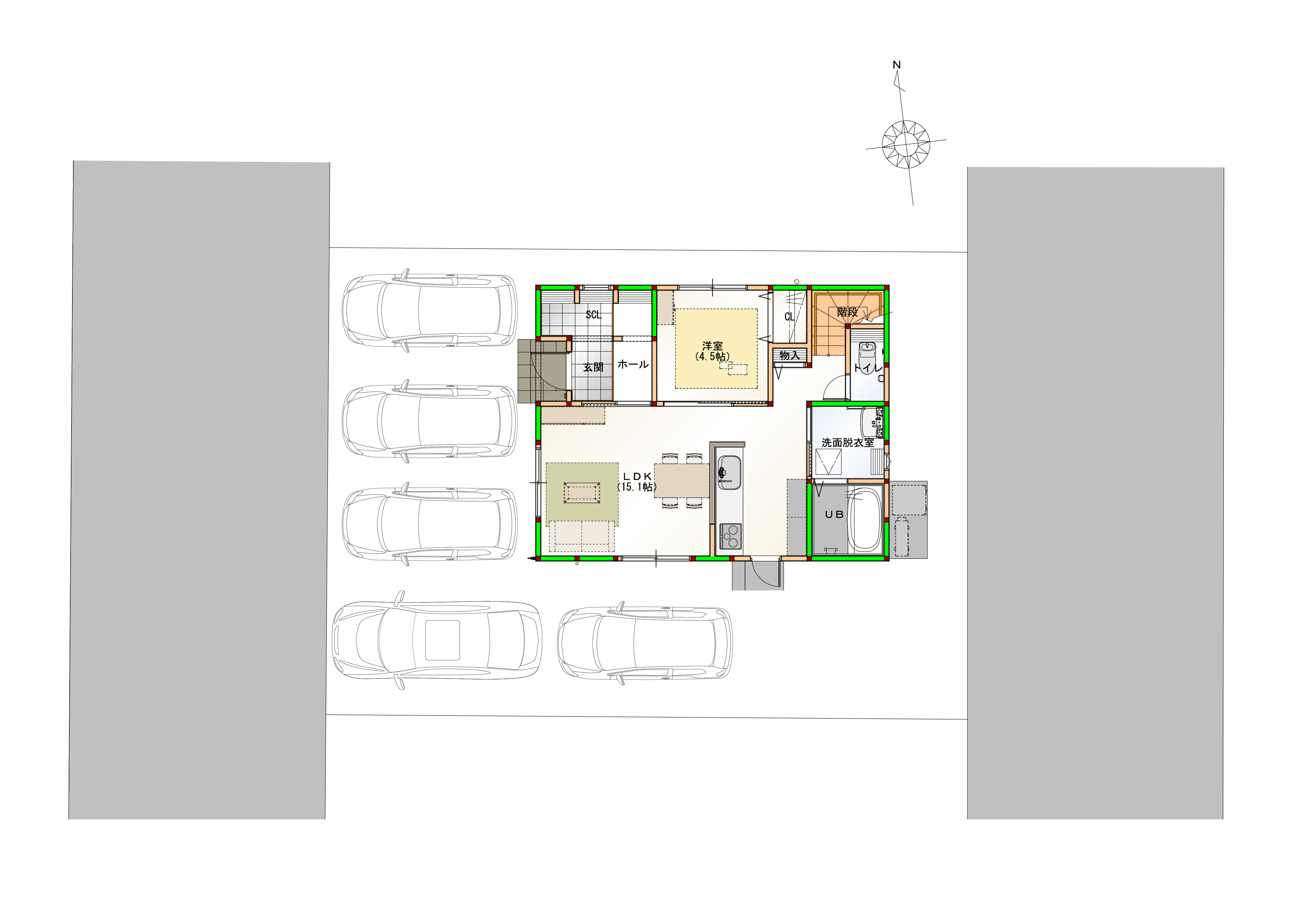
5台駐車できるゆとりのカースペース。間取りは4LDKと、プライベートスペースをしっかり確保しつつ、楽しい家族団らんもできる住まいです♪ 撮影月:2025年10月
駐車5台可能! 画像はイメージです。
家族が集まるリビングは広々15.1帖!キッチンからもリビングが見渡せるため、どこに居ても家族を感じ、会話もはずみますね。
家族が集まる明るいリビング!お子様のお勉強をダイニングで済ませるようにすると家事をしながらお子様の頑張りを見守れます♪
対面式キッチンは家事をしながら家族を見守り、コミュニケーションの取れる人気のスタイル。食洗器付きで洗い物の時間を削減でき、家事の負担を軽減してくれるキッチンです。
対面式キッチンは家事をしながら家族を見守り、コミュニケーションの取れる人気のスタイル。食洗器付きで洗い物の時間を削減でき、家事の負担を軽減してくれるキッチンです。※施工事例です。実物とは異なります。詳しくはお問い合わせください。
1日の疲れをほぐす、とっておきのリラクゼーションタイムを楽しむバスルーム。 美しく、機能的なデザインを採用、清潔感あふれる心地よい空間づくりにこだわりました。
三面鏡の裏は収納スペースとなっており、物が多くなりがちな洗面台まわりをスッキリ保つことができます。
洗濯機上のデッドスペースを収納に! シャンプーや洗剤のストック、掃除道具の収納にも!
主寝室は広々していて安らげる空間に。大きな窓から光が差し込み、朝の目覚めも良さそう♪
2階は3室確保!子ども部屋もしっかり取れます。自分だけの空間が嬉しい♪
2階は3室確保!子ども部屋もしっかり取れます。自分だけの空間が嬉しい♪
屋根付きバルコニーで急な雨で洗濯物が濡れる心配も少ない設計♪ 天井吊りパイプで足回りもすっきり♪
全居室収納付き!たっぷり収納できます♪大切なお洋服もスッキリ収納できます。
温水洗浄便座トイレ。新素材により、気になる便座もサッとひとふきでキレイになります。
2階にもトイレを設置!夜間に1Fへ降りることもないのでお子様でも安心できます♪
大容量の土間収納を設置。靴はもちろん、べビーカーや 趣味の道具を置いておくのにも便利です♪
前面道路
いえとち本舗の新築住宅は省エネ性能住宅で光熱費を年間約11.5万円まで抑えてくれます
【完成済み物件見学会】実際の住まいを体感できます、今すぐ見学予約受付中
家事ラク導線で水回りを一まとめ♪丁度いいコンパクトハウスで日々の生活を楽に快適にサポートします♪ ※画像はイメージです。
- 価格
- 2,798万円
- 所在地
- 徳島市丈六町丈領
- 交通
-
JR牟岐線 中田 (徒歩50分)
- 通学区
-
渋野小学校 (1,054m)
南部中学校 (1,997m)
- 間取り
- 4LDK
- 建物面積
- 103.02㎡
完成時期
(築年月)
- 2025/8
- 階数
- 2階建
\ セールスポイント /
★駐車台数5台 【徳島市丈六町建売①】太陽光7.920kW搭載!ZEH住宅!
★間取り:4LDK(1F:LDK15.1帖 洋室4.5帖 2F:洋室5.1帖、洋室6.6帖、寝室7.7帖)
標準装備も充実♪
〈キッチン設備〉
対面式キッチン・IHコンロ・水なし両面焼きグリル・食器洗い乾燥機・キッチン手元コンセント・浄水器内蔵型水栓・カウンタートップ人造大理石
〈その他設備〉
3面鏡洗面化粧台・シャワー付洗面化粧台・浴室ポップアップ排水栓・1坪サイズシステムバス・浴室換気暖房乾燥機・温水洗浄便座・複層ガラス・TVモニタ付インターホン・インナーバルコニー・24H換気・外部コンセント・外部水栓・2階トイレ・洗面エコハンドル水栓・UBエコアクアシャワー・UBマグネットシェルフ・断熱浴槽・EV充電器・勝手口
〈収納〉
全室居室収納・ウォークインクローゼット・床下収納・シューズボックス・ランドリー稼働棚
安心・安全・快適に暮らせるお家♪
〈構造・仕様〉
オール電化・耐震等級3相当・ZEH仕様・Low-eガラス窓・断熱性能5等級以上・一次エネルギー消費量6等級以上・フラット35S金利Aプラン対応(申請費用別途)
〈保証制度〉
長期住宅保証・長期白蟻保証・アフターメンテナンス・シックハウス対策
周辺環境
☆キョーエイルピア店まで車で11分(3898m)
☆渋野小学校まで徒歩14分(1054m)
☆南部中学校まで徒歩25分(1997m)
☆セブンイレブン徳島勝浦川橋店まで徒歩32分(2485m)
☆多家良郵便局まで徒歩27分(2112m)
━━━━━━━━━━━━━━━━━━━━━━
(事前に必ずお問い合わせください)
平日のご案内も大歓迎!
お気軽にお問い合わせ下さい☆
(1)【サクサク内覧コース】
(所要時間:30分程度)
プランのご説明、その他のご質問その場でお答えします。
(2)【じっくり内覧コース】
(所要時間:60分~90分程度)
サクサク内覧コースの内容+住宅ローンのご提案等のご相談何でも承ります。
資料をご提示の上しっかりご説明させて頂き見積もお作り致します。
発売前でインターネットに掲載していない情報などもお伝え致します。
●住宅ローンや資金計画もお気軽に●
━━━━━━━━━━━━━━━━━━━━━━
借入れなど資金についてもお気軽にご相談ください。
返済シミュレーションももちろん無料!
お金についてもしっかりと考えましょう!
※毎週火曜・水曜日は定休日です。
●ご来店特典!●
━━━━━━━━━━━━━━━━━━━━━━
お店にご来店いただくと未完成物件でも
内装・仕様・カラーなど完成後を
イメージできる資料がございます!
お気軽にご相談にお越しくださいませ。
●資料請求も同時受付中♪●
━━━━━━━━━━━━━━━━━━━━━━
下部の「物件お問い合わせ」クリックで、
お気軽にお問い合わせください。
月々お支払い例
- 借り入れ金額
- 2,798万円
- 頭金
- 0円
- ボーナス払い
- 0円
毎月の返済額 67,490 円
※毎月返済額は元利均等方式の住宅ローン金利0.75%(3年固定)40年返済として算出しています。※当初3年間の返済金額です。 ※取扱金融機関は地方銀行の紹介ローンで算出しています。※融資限度額は地域・物件等の諸条件等により異なります。 ※保証料は融資額により異なります。※取扱手数料が別途かかります。※金融機関の審査により融資の可否は異なる場合がございます。
詳細情報
- 建物面積
- 103.02㎡
- 土地面積
- 165.30㎡
- 私道負担面積
- -
- 構造
- 1
- 階建
- 2階建
- 間取り
- 4LDK
完成時期
(築年月)
- 2025/8
- 水道
- 1 引込 1 前面道路本菅50mm
- ガス
- 排水
- 2
- コンロ
- 駐車場
- 5台
- 都市計画
- 2
- 地目
-
1
- 用途地域
-
99
- 建ぺい率
- 60%
- 容積率
- 200%
- 土地権利
- 1
- 現況
- 5
- 引渡時期
- 2
- 接道状況
-
17側 幅員6m 接面10.986m
- 国土法
- 建築確認番号
- 第75号 令和7年4月30日
- 取引態様
- 株式会社グリーンエナジー・ライフ (1)
- 備考
- 建築確認番号:第75号 令和7年4月30日
【全室エアコンプレゼントキャンペーン注意事項】
■2025/11/30までのご契約で、2026/1/31までに物件引渡しのお客様
■対象の建売物件購入された方
■契約後、お客様の都合により解約に至った場合、権利は無効。
■本権利の他人に譲渡や金銭や他の物品との交換は不可
■その他のキャンペーンと併用不可
【子育てグリーン住宅支援事業に関する注意事項】
■ 国の「子育てエコホーム支援事業」を利用した補助
■ 子育て世帯(18歳未満の子あり)または若者夫婦世帯(夫婦どちらか39歳以下)が対象
■ 事業予算が上限に達した場合は終了
太陽光発電システム7.920kW込みでの販売も可能、その際の価格は+100万円になります。
※お客様の屋根を当社にお貸しいただき太陽光発電システムを設置する「屋根貸しシステム」をご利用頂く事が価格の条件です。
※太陽光発電システムは発電開始して10年経過後に無償で譲渡します。
※太陽光発電付きでの購入も可能で、その場合は太陽光売電収入はお客様が得る事になります。
- 更新日
- 2025年12月15日
- 次回更新日
- 2025年12月29日


