LIVIE土居田2503C
- 価格
- 3,450万円
- 所在地
- 松山市土居田町
- 交通
-
伊予鉄道郡中線 土居田 (徒歩7分)
バス停:国土交通省前 (徒歩5分)
- 通学区
-
たちばな小学校 (550m)
雄新中学校 (1,400m)
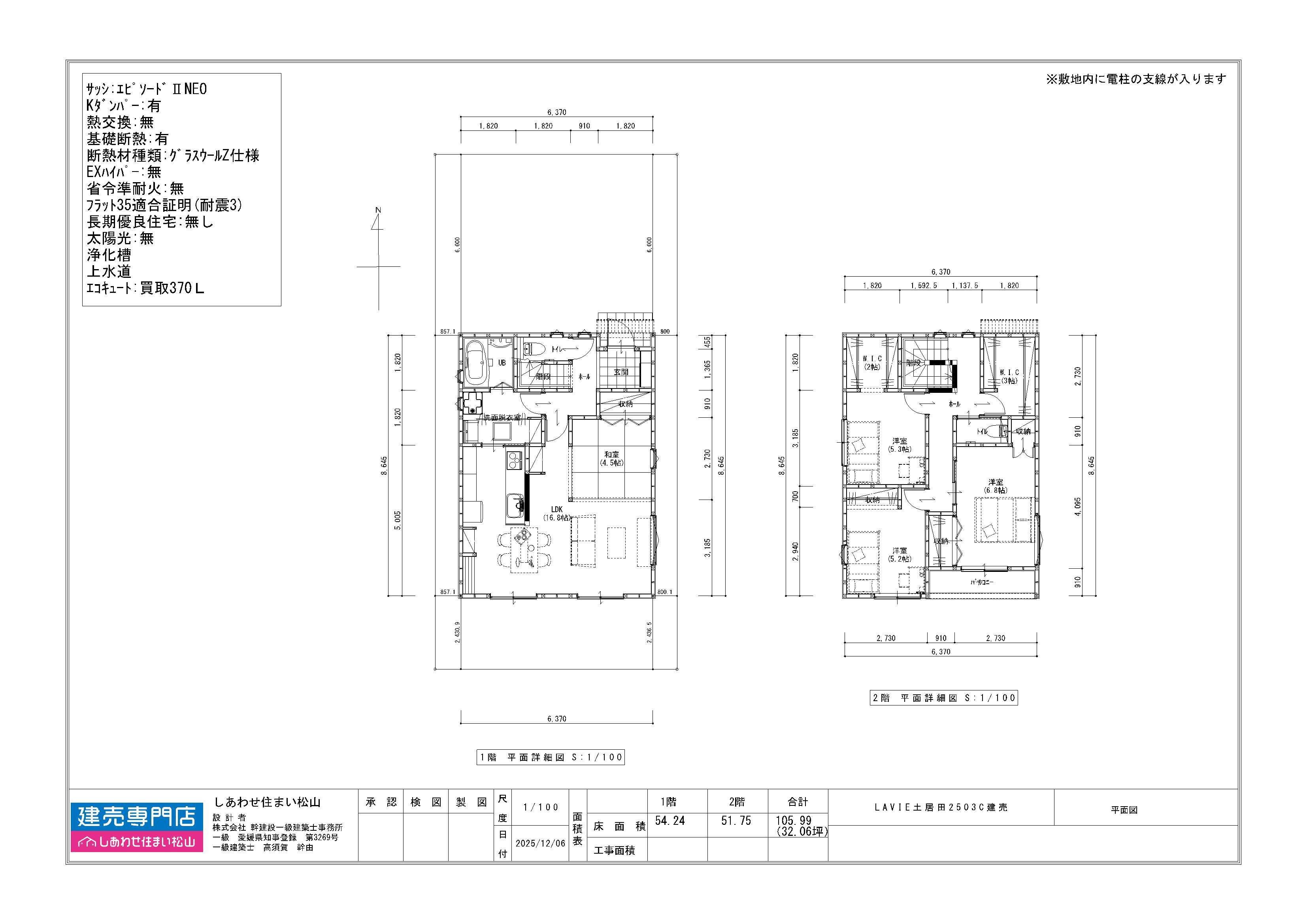
- 間取り
- 4SLDK
- 建物面積
- 105.99㎡
完成時期
(築年月)
- 2026/6
- 階数
- 2階建
月々お支払い例
- 借り入れ金額
- 3,450万円
- 頭金
- 0円
- ボーナス払い
- 0円
毎月の返済額 83,217 円
※毎月返済額は元利均等方式の住宅ローン金利0.75%(3年固定)40年返済として算出しています。※当初3年間の返済金額です。 ※取扱金融機関は地方銀行の紹介ローンで算出しています。※融資限度額は地域・物件等の諸条件等により異なります。 ※保証料は融資額により異なります。※取扱手数料が別途かかります。※金融機関の審査により融資の可否は異なる場合がございます。
詳細情報
- 建物面積
- 105.99㎡
- 土地面積
- 137.09㎡
- 私道負担面積
- -
- 構造
- 1
- 階建
- 2階建
- 間取り
- 4SLDK
完成時期
(築年月)
- 2026/6
- 水道
- 1 引込 1
- ガス
- 排水
- 2 引込 1
- コンロ
- 駐車場
- 2台
- 都市計画
- 1
- 地目
-
1
- 用途地域
-
12
- 建ぺい率
- 60%
- 容積率
- 160%
- 土地権利
- 1
- 現況
- 4
- 引渡時期
- 2 2026年6月 3
- 接道状況
-
51側 幅員4m 接面8.02m5側 2 幅員4m 接面8.02m
- 国土法
- 建築確認番号
- 第2025建確-2129号
- 取引態様
- 株式会社グリーンエナジー・ライフ (6)
- 備考
- 上下水道負担金¥300,000(税込)、浄化槽申請費用¥152.110-は買主負担です。
※北側道路は開発道路
- 更新日
- 2026年03月09日
- 次回更新日
- 2026年03月23日
お近くの店舗で相談
-
来店予約
松山本店(本部 直営店)
愛媛県松山市小栗3丁目2-40 B-2
0120-856-296


